A Tiny East York Kitchen That Got a Clever Glow-Up

Hosting season has a way of putting a spotlight on every friction point in your home- especially in the kitchen.

Suddenly the drawers feel tighter, the counter shrinks, and you find yourself thinking, “How is the sink already full?”
You’re not imagining it. Small kitchens get very small this time of year.

That’s exactly where this project began: a compact and awkwardly laid out East Toronto kitchen that simply couldn’t keep up. So we stepped in with a clear plan, layered with purpose and driven by the way this family truly lives.

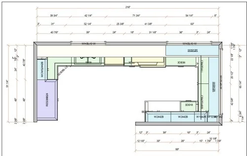
In the images below, you’ll see the whole journey—

  • the befores

  • the early space plans

  • the cabinetry redesign that made every inch work harder

  • the millwork elevations

  • the demo and install stages

  • and the final details that bring a room to life

We reimagined the footprint with smarter cabinetry that transforms tight corners into storage, custom millwork that truly earns its keep, and even a petite desk nook for work-from-home or homework. And when the dust settled, the transformation was so impactful that our client said:
“I mean, I know it’s the same space, but somehow you’ve made it way bigger.”

This is what thoughtful, intentional design does—it makes the home you already have feel brand new, without adding a single square foot.

If your kitchen feels two sizes too small this season, you’re not alone. And yes—now is the perfect time to plan a space that fits your life beautifully in the new year.

Shop Local This Holiday Season

This time of year, our Toronto neighbourhoods shine a little brighter. Lights go up, local cafés smell like cinnamon, and independent shops stock the good stuff—the joyful, the handmade, the thoughtful.

A gentle reminder as we dive into holiday mode: shop local whenever you can. Your neighbourhood favourites—bookstores, bakeries, gift shops, makers, markets, florists, galleries—are the heartbeat of our communities. They wrap your gifts with care, they keep our streets vibrant and full of life, and they’ve got the good stuff!

So whether you’re picking up something special for someone you love or treating yourself (also important!), take a stroll, visit the small shops, and support the people who make our neighbourhoods feel like home.

Shop Local

Previous
Previous

A better-feeling home—and a better holiday next year—starts now.

Next
Next

Toronto Home Refresh: Small Interior Design Updates That Make Your Space Feel Like You